500kg Hire Concrete Marquee Weights
500kg concrete marquee weights are a non-invasive counterweight, designed to be used for securing marquees, stages gazebos and other temporary structures. Installation of the ballast blocks is quick and easy, they can be lifted using a forklift or pallet truck under the unit or via the lifting point on the top of the block.
The price is per block for up to 7 days hire and is collection from our main base in Rotherham. We can arrange transport at additional cost. We have full loading capabilities at our base.
Pricing
£15 per block 1-2 weeks
£ 7.50 per block 3-9 weeks
£6.50 per block 10-11 Weeks
£5 Per block 12 weeks or longer
These 500kg blocks are also available for sale please contact us for a quote. Discounts available for larger qty on hire for 26 weeks or more.
Contact 01143450135 for more information.
We are Happy to quote transport cost separately via flat bed or mofett crane equipped vehicle.
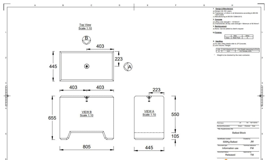
| Height (mm) |
Length (mm) |
Width (mm) |
Unit Weight (kg) |
| 655 |
805 |
445 |
500 |
500kg Hire Concrete Marquee Weights
Our 500kg concrete marquee weights provide a secure, non-invasive counterweight solution for anchoring marquees, stages, gazebos, and other temporary structures. Designed for quick and easy installation, these ballast blocks can be moved effortlessly using a forklift, pallet truck, or the integrated lifting point on top of the block.
Beyond structural stability, these weights also serve as effective counter-terrorism vehicle mitigation barriers, making them ideal for local authority events, temporary markets, city center gatherings, and other high-footfall occasions. Their ease of maneuverability and rapid deployment capability ensure a reliable and efficient safety solution for any event.
Suitable For
| Indoors on Artificial Grass |  |
| Indoors on Hard Surface |  |
| Outdoors on Concrete |  |
| Outdoors on Grass |  |
| Outdoors on Grass / Hard Surface Mix |  |
| Outdoors on Hard Surface |  |
| Outdoors on Wood Chip |  |