Merry Christmas and a Happy New Year Our phone lines are closed until the 5th Jan 26 You can still send an enquiry and a team member will get back to you within 48 hours.

DB Entertainment

nationwide

03332100285

sheffield

0114 345 0230

Contact us Today

Enquiry Page Here

Call us

Nationwide 03332100285

Sheffield 0114 345 0135

Rotherham 01709 818686

Doncaster 01302 460 015

Worksop 01909 880 045

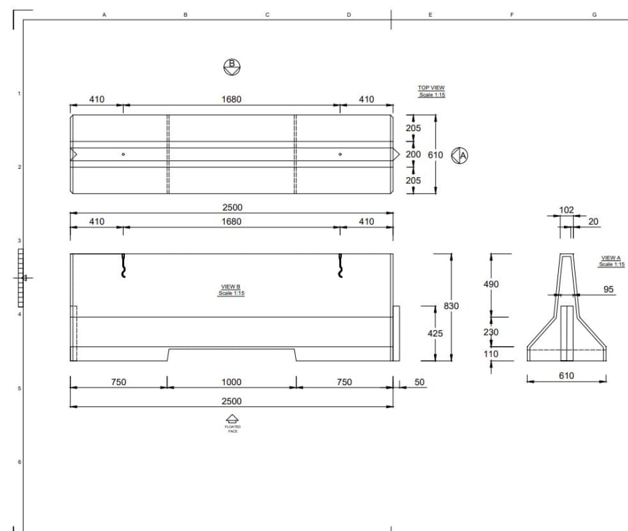
2.5m Concrete Jersey Barrier

Price: From £12.25

Concrete Safety Barriers and Blocks - 2.5m

For protection of property and traffic management, hire our concrete barriers and blocks for a solution to your security and safety issues.

Most of our enquiries for concrete blocks and barriers have been for security. We have also placed them in front of temporary buildings and structures that businesses have placed in new areas, protecting them from traffic and public access.

With a demand for social distancing, including in car parks and outdoor areas, concrete blocks can be used to separate parking slots and direct traffic to specific areas.

The concrete barriers we offer are easily transportable with space underneath for transporting with forklifts and allowing rain water to pass through.

The price shown is per block for up to 7 days hire and is collection from our main base in Rotherham where we have full loading capabilities. We offer transport and our 1300 kg blocks are available to buy with discounts for larger quantities, please speak to us about the prices we can offer.

We have several other options for customers looking for specific precast, concrete solutions. Speak to us about the current options and what your needs are to find the right solution.

For each of the below we have various sizes and weights –

  • Precast retaining wall
  • Prestressed concrete panels
  • Interlocking concrete blocks
  • Precast concrete barriers
  • Concrete ballasts
  • Concrete hoarding blocks

With our concrete barrier and blocks, we offer a selection of other barriers and safety equipment including tensa barriers, crowd barriers and road cones.

Hire or buy, delivery same day, next day or rapid response dependent on requirements and discount for longer term hire.

Pricing

£20 per block 1-2 weeks

£17.50 per block 3-9 weeks

£15 per block 10-11 Weeks

£12.5 Per block 12 weeks or longer

Please call DB on 0114 3450135 to discuss our Covid Secure products and equipment.

Length (mm) Width (mm) Height (mm) Unit Weight (kg)
2500 610 830 1300


Suitable For

Indoors on Artificial Grass
Indoors on Hard Surface
Outdoors on Grass
Outdoors on Hard Surface

All Prices are Subject to VAT (+20%)

Please note there may be a minimum spend dependent on your postcode Location. The minimum order amount will be displayed in the order summary after choosing your date.

Delivery Locations
Nationwide hire available across the UK. Delivery areas are Sheffield, Manchester, Bristol, Birmingham, Reading, Oxford, Swindon, London, Coventry, Milton Keynes, Leeds, Peterborough, London, we also have several deliveries per week to the NEC in Birmingham, Manchester Central Convention Complex, telford exhibition centre, and ExCel London.

Call us now for more information or a quote on 0114 345 0135



You Might Also Like..

0